Informacje podstawowe
Nr oferty: MS0259Pełny opis nieruchomości
Na sprzedaż mieszkanie 50 m² w kamienicy przy ul. Kilińskiego w Poznaniu
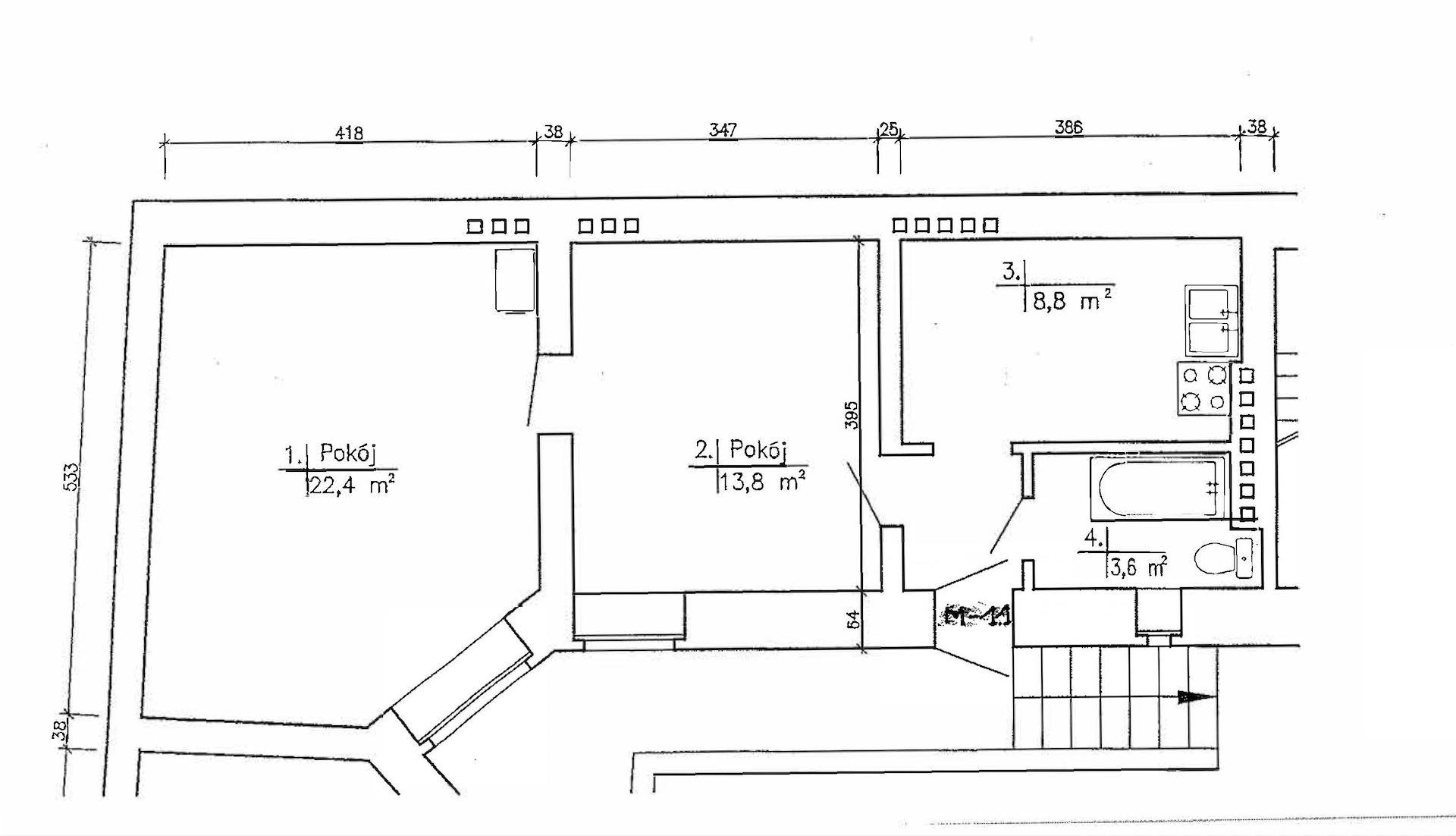
Przedmiotem oferty jest mieszkanie o powierzchni 50,7 m², położone w suterenie , w lewej oficynie kamienicy położonej na Wildzie – przy ul. Kilińskiego.
Lokal składa się z:
a) dwóch pokoi, w tym jednego przejściowego, o powierzchniach 22,4 m2 oraz 13,8 m2
b)oddzielnej, ciemnej kuchni,o powierzchni 8,8 m2
c) łazienki o powierzchni 3,6 m2
d) korytarza o powierzchni 2,1 m2
Do mieszkania przynależy również piwnica o powierzchni 5,3 m².
Mieszkanie wymaga kapitalnego remontu, co daje przyszłemu właścicielowi szerokie możliwości aranżacyjne i dostosowania wnętrza do własnych potrzeb. Istnieje możliwość stworzenia bardzo funkcjonalnego mieszkania na własne potrzeby lub pod wynajem. Ogrzewanie piecem kaflowym. Ciepła woda z junkersa. Media : prąd, gaz, woda i kanalizacja.
Mieszkanie znajduje się w ładnej , zadbanej kamienicy, w której na bieżąco przeprowadzane są prace remontowe i konserwacyjne.
Doskonała lokalizacja , blisko centrum Poznania, w sąsiedztwie liczne sklepy i punkty usługowe a także przystanki tramwajowe.
Idealna propozycja dla osób poszukujących nieruchomości z potencjałem w atrakcyjnej lokalizacji.
Cena: 295 000 zł
Kontakt: Olga Błaszczyk – Nowakowska 502-063-614

