Informacje podstawowe
Nr oferty: DS0054Pełny opis nieruchomości
Oferujemy do sprzedaży zespół pałacowo-parkowy położony we wsi Drobnin, gmina Krzemieniewo, powiat Leszno, wpisany do rejestru zabytków pod nr 1675/A.
Budynek pałacu/dworu został wzniesiony w II połowie XIX wieku, gruntownie rozbudowany i przebudowany po 1912 r – w stylu klasycystycznym.
Parterowy korpus główny, na planie prostokąta z piętrowymi ryzalitami po bokach i okazałym czterokolumnowym portykiem, nakryty został dwuspadowym dachem.
Portyk zwieńczony jest trójkątnym frontonem z herbem ostatnich przedwojennych właścicieli, rodziny Ponikiewskich.
Pałac o bogatej historii był siedzibą majątku ziemskiego, który w 1926 r liczył 431 ha.
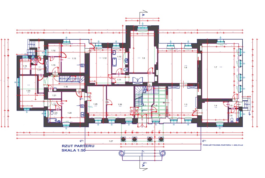
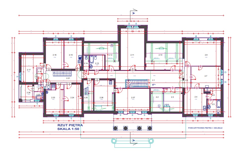
Powierzchnia użytkowa pałacu wynosi 956 m2 z czego powierzchnia parteru wynosi 406 m1, pietra 396 m2 oraz piwnic 156 m2,
Do budynku doprowadzono wszystkie media: prąd, wodę gaz i kanalizację.
Ogrzewanie centralne (piec wymaga wymiany)
Okna skrzynkowe, drewniane (częściowo do remontu, częściowo do wymiany).
Dach został poddany gruntownej naprawie w 2009 r, wymieniono częściowo konstrukcję oraz całkowicie wymieniono dachówkę.
Budynek wymaga gruntownego remontu (izolacja murów zewnętrznych) i modernizacji wnętrz.
Park, o powierzchni ok 6,5 ha, założony w I połowie XIX wieku, w stylu angielskim z 4 stawami, jest częściowo ogrodzony.
Nieruchomość stanowi własność prywatną, bez jakichkolwiek obciążeń.

